Perivolia - Soutsos Tavern, E336, Pervolia, Δήμος Δρομολαξιάς - Μενεού, Larnaca District, Cyprus, 7560, Cyprus
Προς μεταπώληση, Προς πώληση
€190,000
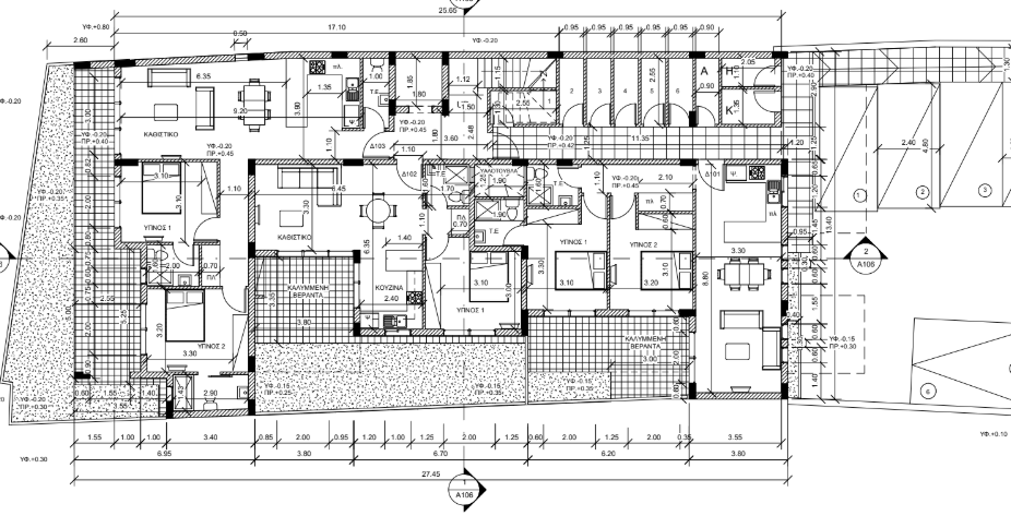
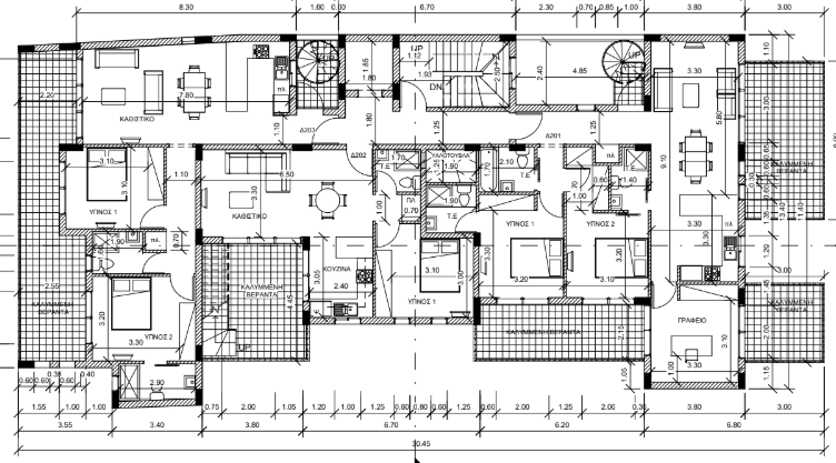
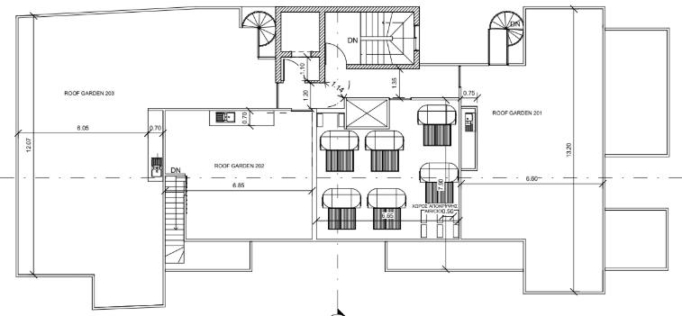
Πωλείται εξαιρετικό οικόπεδο 590 τ.μ. στην περιοχή Περιβόλια της επαρχίας Λάρνακας με όλες τις απαραίτητες άδειες και ολοκληρωμένο αρχιτεκτονικό σχεδιασμό για την άμεση κατασκευή σύγχρονης διώροφης πολυκατοικίας έξι διαμερισμάτων. Το εγκεκριμένο project περιλαμβάνει 6 καλαίσθητα, πρακτικά και άνετα διαμερίσματα, εκ των οποίων τα 3 βρίσκονται στο ισόγειο με ιδιωτικό κήπο και βεράντα, ενώ τα άλλα 3 στον πρώτο όροφο διαθέτουν μεγάλα μπαλκόνια και ευρύχωρα roof gardens. Τα διαμερίσματα διαμορφώνονται σε επιλογές 1, 2 και 2+1 υπνοδωματίων, με εσωτερικά εμβαδά από 52 τ.μ. έως 101 τ.μ., με σύγχρονο σχεδιασμό που εξασφαλίζει μέγιστη αξιοποίηση χώρων και άνετη διαβίωση. Το έργο προβλέπεται με ενεργειακή κλάση Α και έχει εξασφαλιστεί επιπλέον θέση στάθμευσης από τον δήμο. Βρίσκεται σε εξαιρετική και προνομιακή τοποθεσία, στον πυρήνα του χωριού, εφαπτόμενο του κεντρικού εμπορικού δρόμου και μόλις 200 μέτρα από την κεντρική πλατεία, με άμεση πρόσβαση σε όλες τις υπηρεσίες, καταστήματα και σχολεία, αποτελώντας ιδανική επιλογή τόσο για επενδυτές όσο και για ανάπτυξη οικιστικού έργου. Τιμή πώλησης 190,000 ευρώ, πλέον Φ.Π.Α.
Owning a home is a keystone of wealth… both financial affluence and emotional security.
Suze OrmanTo provide the best experiences, we and our partners use technologies like cookies to store and/or access device information. Consenting to these technologies will allow us and our partners to process personal data such as browsing behavior or unique IDs on this site and show (non-) personalized ads. Not consenting or withdrawing consent, may adversely affect certain features and functions.
Click below to consent to the above or make granular choices. Your choices will be applied to this site only. You can change your settings at any time, including withdrawing your consent, by using the toggles on the Cookie Policy, or by clicking on the manage consent button at the bottom of the screen.