Buy
Rent
Resale
About
Contact
contactDetails
70009991
[email protected]
Follow Us
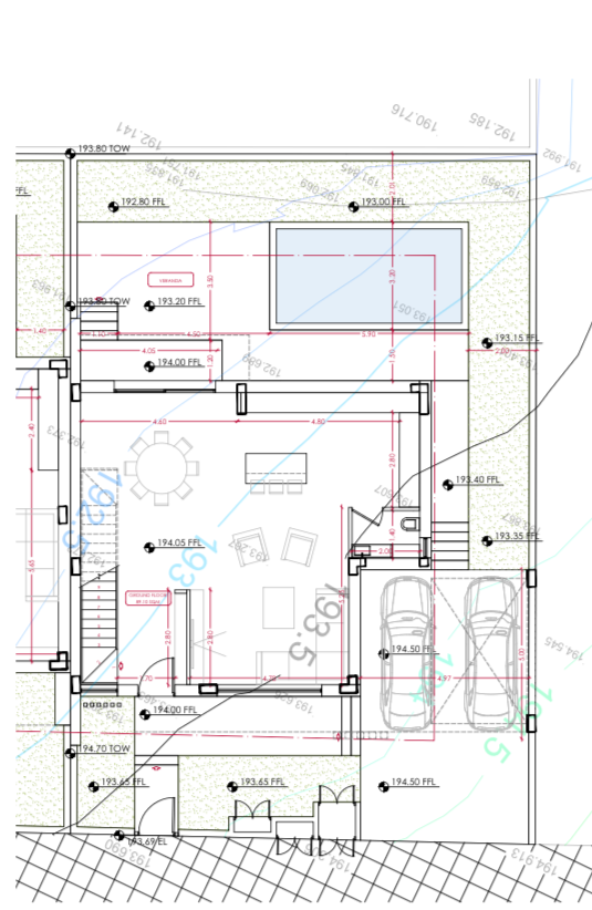
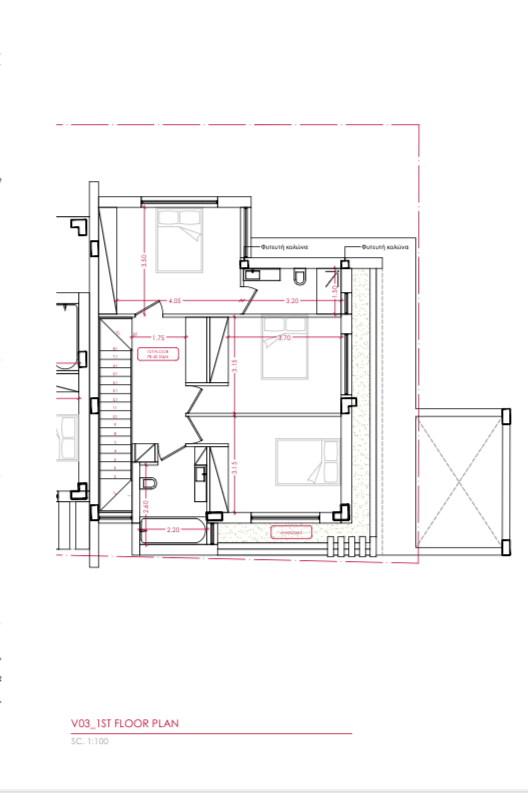
FOR SALE UNDER CONSTRUCTION, SEMI-DETACHED THREE-BEDROOM HOUSE IN YPSONA- LIMASSOL- ID 002220772 | Sabbianco Properties