Buy
Rent
Resale
About
Contact
contactDetails
70009991
[email protected]
Follow Us
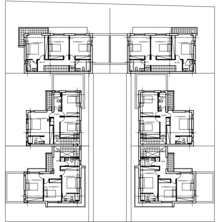
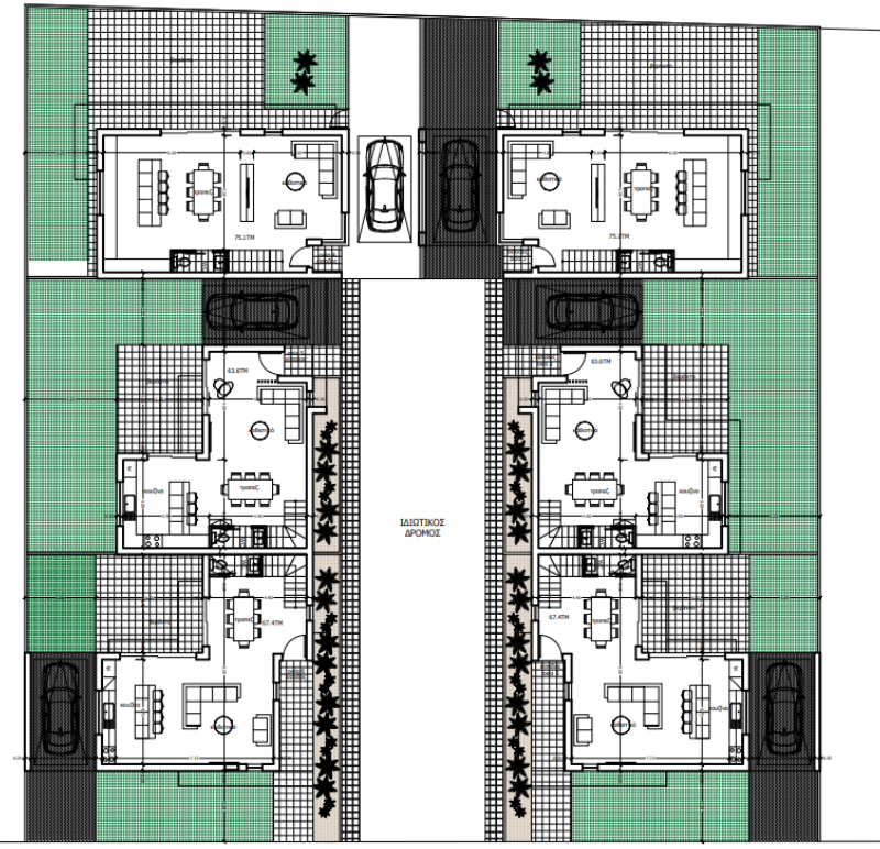
FOR SALE THREE BEDROOM HOUSE UNDER CONSTRUCTION IN ANGLISIDES – LARNACA – ID 002239623 | Sabbianco Properties